186 James Street
| ADDRESS: | 186 James Street, Ottawa, ON |
|---|---|
| PROPERTY TYPE: | Multi-family |
| LOCATION: | Central |
| ZONING | R4UD[479] |
Building and Area Highlights
Price: $ 3,195,000.00
Discover a beautifully restored, fully rented, 11-unit multi-family building ideally situated in the heart of Ottawa. This fully modernized property presents a turn-key investment with strong tenant appeal and minimal ongoing capital requirements. Each suite showcases thoughtful design and durable finishes, blending heritage charm with modern functionality — a rare balance that ensures lasting desirability and consistent rental demand.
In 2015, the building underwent significant upgrades, including a new boiler, a replaced roof, and the addition of air conditioning and a common laundry room. Two on-site parking spaces further enhance its appeal in this central urban setting.
Positioned within walking distance of grocery stores, restaurants, nightlife, Chinatown, and the Elgin Street corridor — and minutes from Highway 417 — this property benefits from exceptional accessibility and strong location fundamentals. With its combination of historic character, quality upgrades, and steady income potential, 186 James Street represents a secure, long-term addition to any investor’s multi-residential portfolio.

Key Features
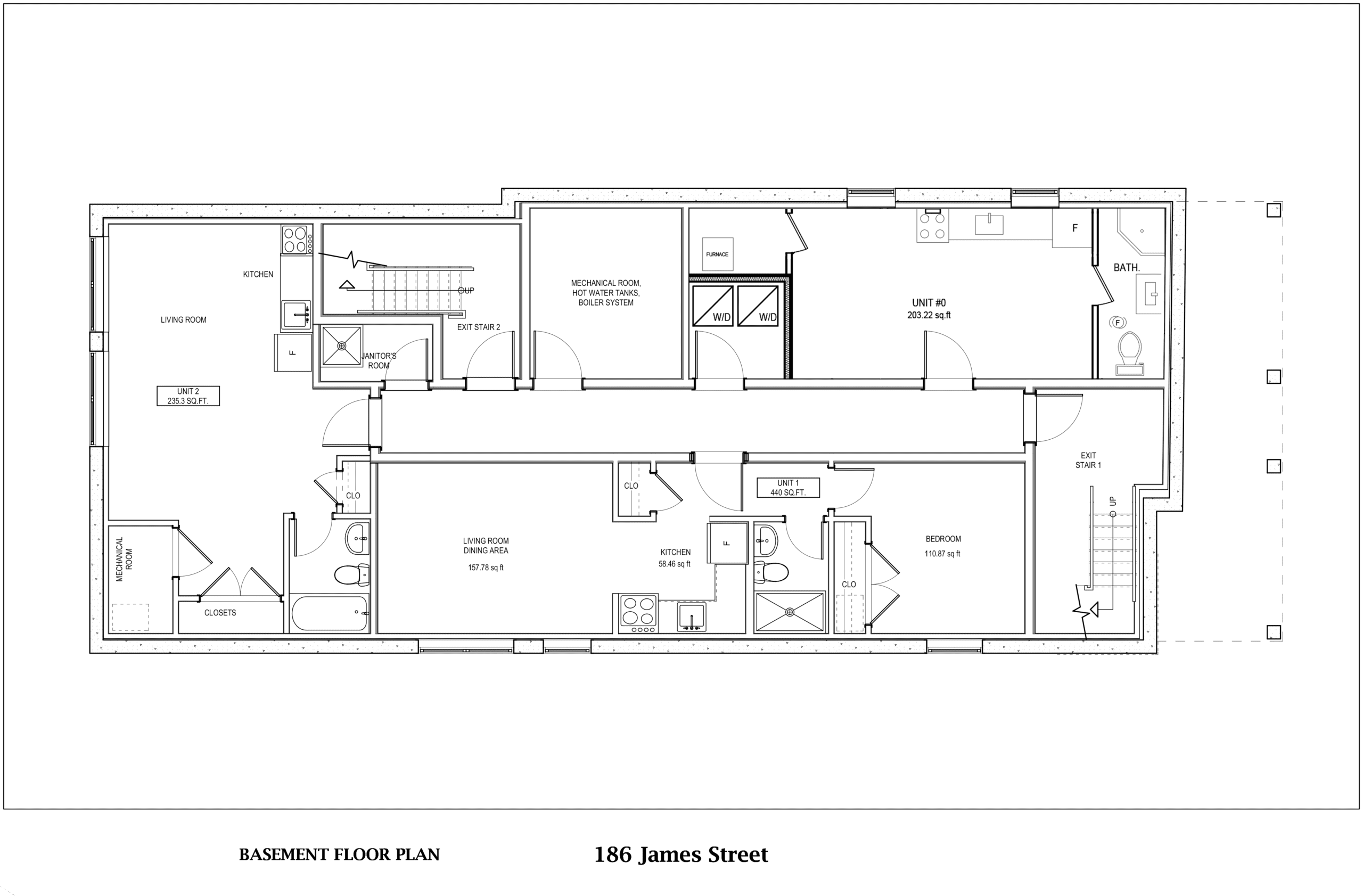
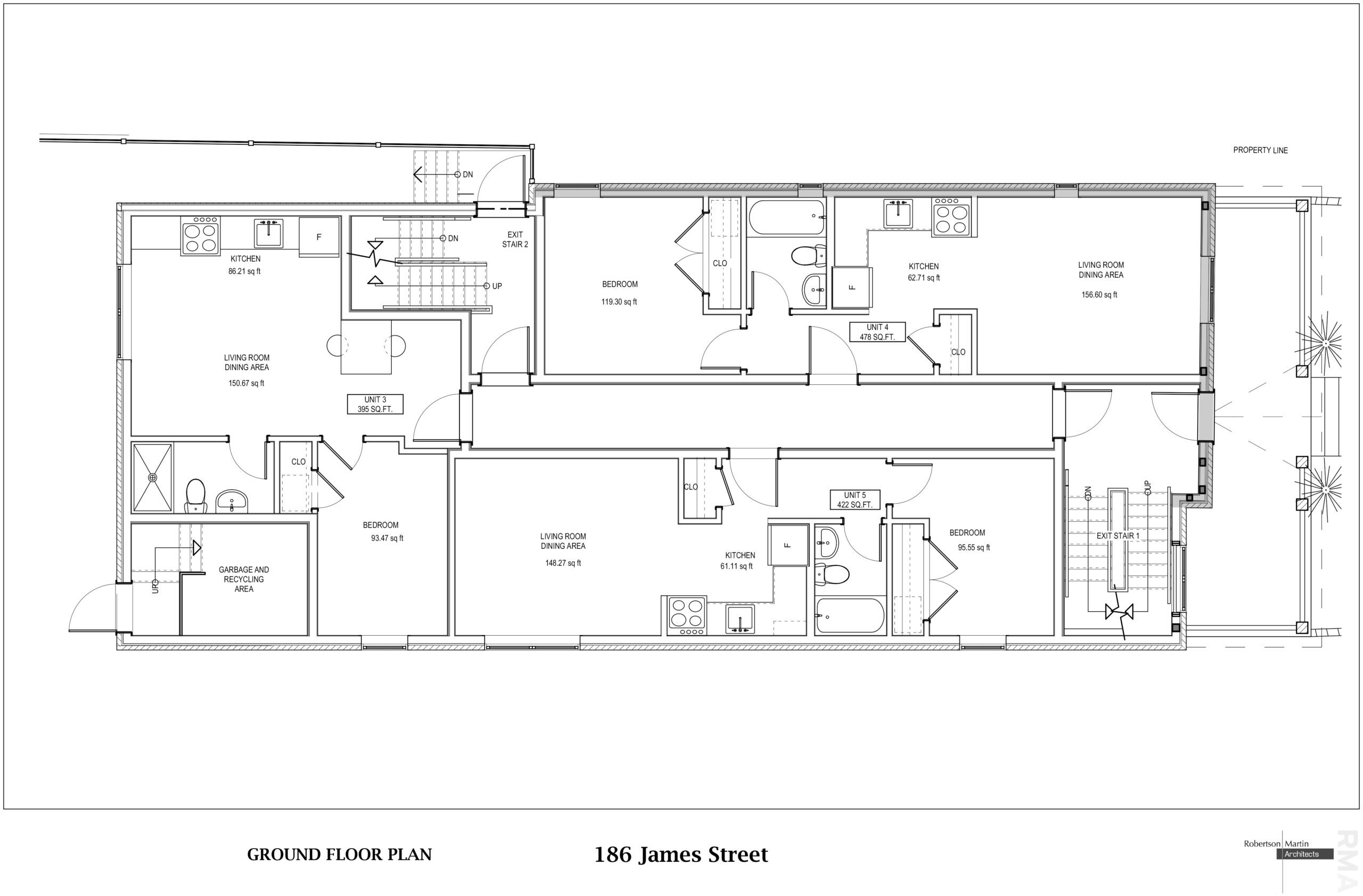
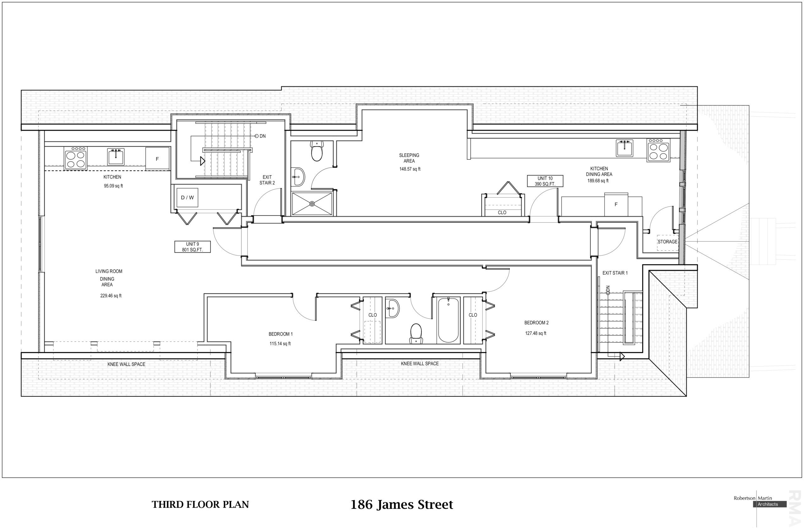
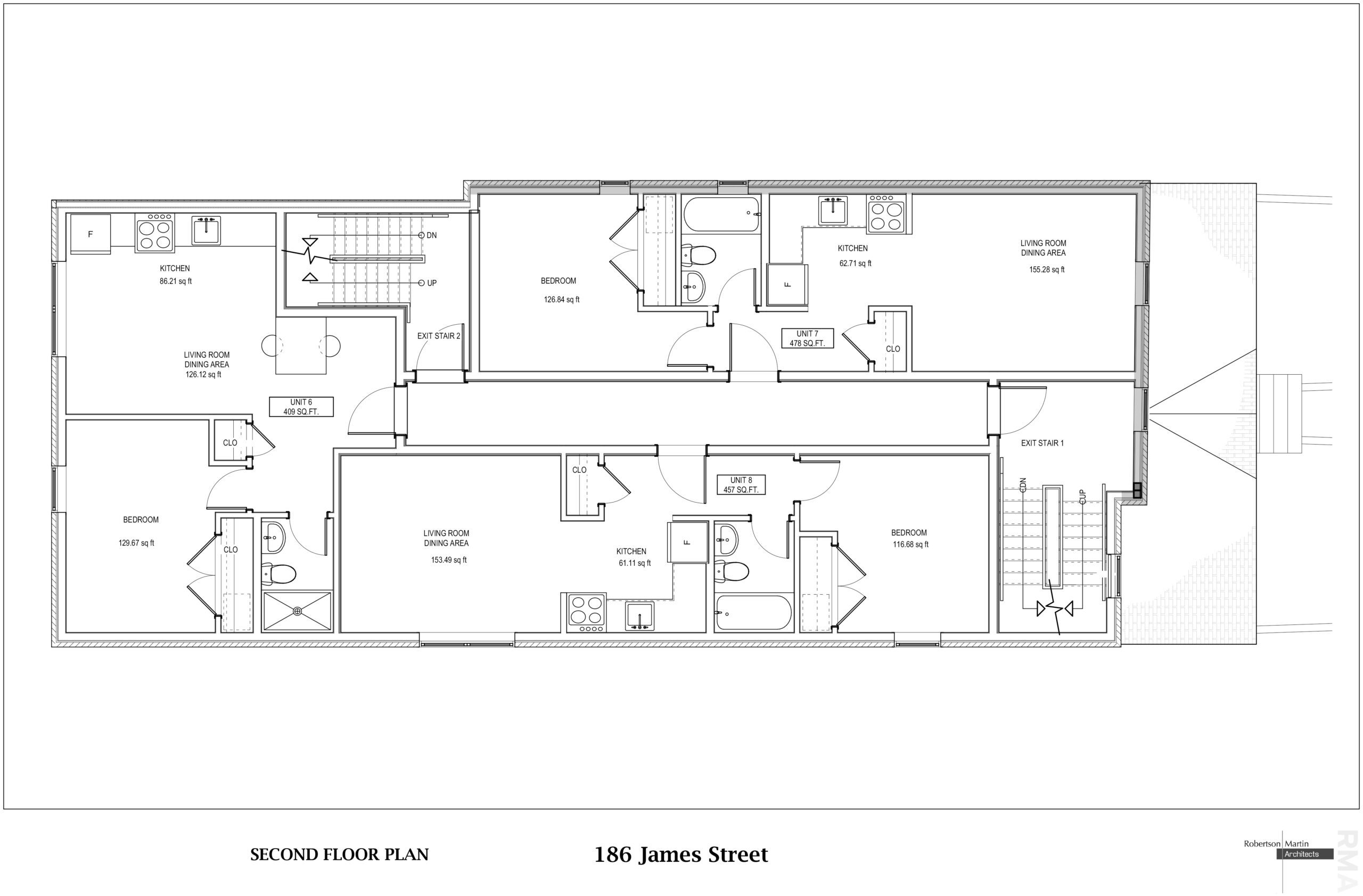
- # of Units: 11
- Unit Mix:
– 2 x Studio
– 8 x One Bedroom
– 1 x Two Bedroom - Site Area: 4,553.13 SF | 0.105 Acres
- Fully renovated in 2015 including new boiler, roof, air conditioning, and laundry room

Area Highlights
- Located in the heart of Centretown, a location that appeals to a professionals and students alike
- Steps from grocery stores, restaurants, and nightlife
- Minutes from HWY 417






























